ライオンズタワー池袋

-

東京都豊島区東池袋3丁目19-10

山手線「池袋」駅徒歩12分

埼京線「池袋」駅徒歩12分

丸ノ内線「池袋」駅徒歩12分

価格
-
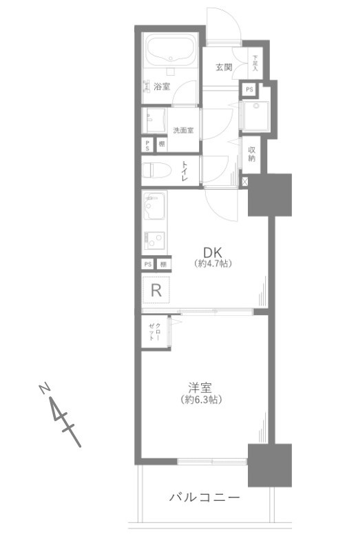
間取り/面積
-/-
所在地
東京都豊島区東池袋3丁目19-10
築年
2001年1月(築25年)
交通

山手線池袋」駅 徒歩12分

埼京線池袋」駅 徒歩12分

丸ノ内線池袋」駅 徒歩12分

ライオンズタワー池袋の基本情報

物件名
ライオンズタワー池袋
価格
-
築年月
2001年1月(築25年)
総戸数
238戸
所在地
東京都豊島区東池袋3丁目19-10
交通

山手線池袋」駅 徒歩12分

埼京線池袋」駅 徒歩12分

丸ノ内線池袋」駅 徒歩12分

ライオンズタワー池袋の詳細情報

設備条件
  • エレベーター
  • 駐輪場
設備(その他)
    -
土地権利
所有権
国土法届出
不要
用途地域
商業
戸数
238戸 / -
管理形態
管理会社に全部委託
管理員の勤務形態
日勤
管理会社
株式会社大京アステージ
取引態様
仲介
引渡し
相談
備考
新着情報:ライオンズタワー池袋の空室情報ならコチラ。こちらの28階建ての物件はいかがでしょうか。駅まで徒歩12分と少し離れている物件です。妊娠されている方もエレベーター付きの物件なので、快適に暮らすことができます。豊島区で住まい探しをするなら、交通の利便性の高い池袋周辺はいかがでしょうか。こだわりやご要望などございましたら、当社までお気軽にお問い合わせ下さい。

ライオンズタワー池袋のコメント(おすすめポイント)

地上28階建てで、住みやすい物件です。立地している商業地域は、現在空地であっても将来その土地に高い建物が立つ可能性が高い地域です。住み心地も充実した、きれいな中古マンションです。駅までは徒歩12分でアクセス可能です。交通の利便性に優れ、住み良い環境が整う池袋周辺は、住みたいエリアとして注目を集めています。ぜひ、不動産の購入をご検討してはいかがでしょうか。

ライオンズタワー池袋

お気軽にお問い合わせください

LINEからお問い合わせ 無料お問い合わせ

株式会社FKホーム

050-3091-1031

9:00~20:00

(休:水曜日)